Cafe top view layout plan details
Description
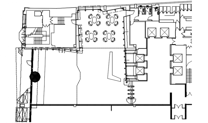
Cafe top view layout plan details. here there is top view layout plan details with furniture detailing and seating top view plan detail in auto cad format
Uploaded by:
Eiz
Luna
Cafe top view layout plan details. here there is top view layout plan details with furniture detailing and seating top view plan detail in auto cad format
Uploaded by:
Luna