Construction details of residential apartment drawings 2d view autocad file
Description
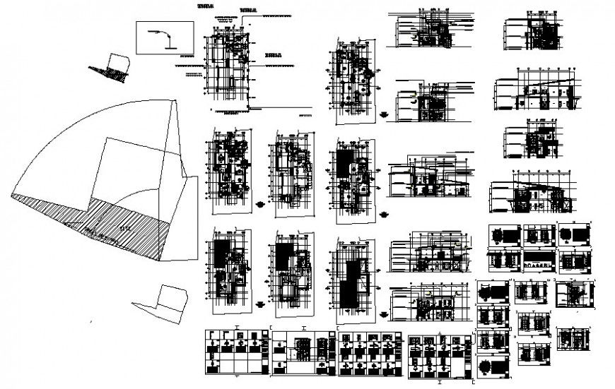
Construction details of residential apartment drawings 2d view autocad file that shows a work plan of housing blocks along with floor level and work plan of building units. Sanitary toilet area along with rooms details and dimension hidden line building different sides of elevation and sectional details also included in the drawing.
Uploaded by:
Eiz
Luna
