Industrial warehouse section, plan and auto-cad drawing details dwg file
Description
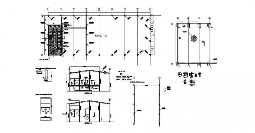
Industrial warehouse section, plan and auto-cad drawing details that includes a detailed view of main entry door, security lodge, technical planning and training room, reception area with lift and stationary store and cleaning room with meeting room, canteen and store, dispatch area, storage area and cold storage, hr department, boilar room and much more of warehouse details.

Uploaded by:
Eiz
Luna

