Museum floor distribution plan and structure cad drawing details dwg file
Description
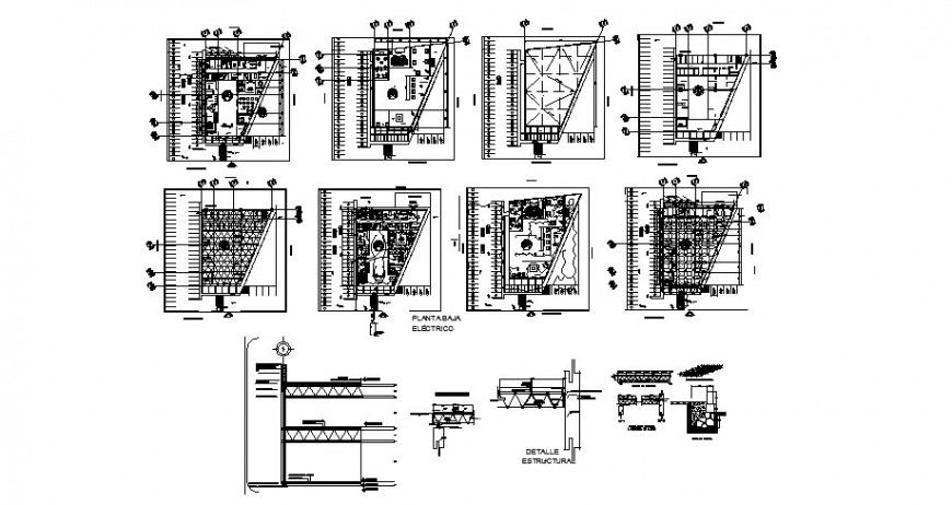
Museum floor distribution plan and structure cad drawing details that includes a detailed view of free auto-cad file including flooring view with wall construction with memory of materials, footings details, column view and beam construction, covers closure type with main entry gate, children play area and common lobby, theater and passage details, display area and shopping plaza department, green space, gallery and theme restaurant details, viewing gallery, kitchen and waiting area, open space with sanitary facilities and much more of museum details.

Uploaded by:
Eiz
Luna

