Outdoor cafe store elevation and layout plan cad drawing details dwg file
Description
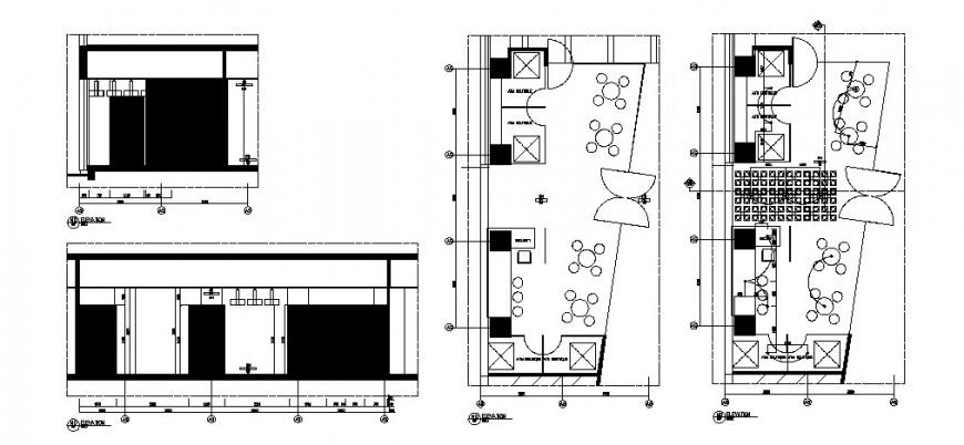
Outdoor cafe store elevation and layout plan cad drawing details that includes a detailed view of reception area, waiting lounge, dining area, food counter, kitchen, cleaning department, staff room, sanitary facilities, furniture details, interior details, furniture blocks and much more of cafe store project.
File Type:
DWG
File Size:
99 KB
Category::
Interior Design
Sub Category::
Showroom & Shop Interior
type:
Gold

Uploaded by:
Eiz
Luna

