LOGIN
HOME
CATEGORIES
UPLOAD FILE
PRICING
HOUSE PLAN
ABOUT US
CONTACT US
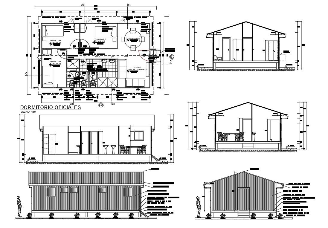
Staff Dormitory Room Design
Home
Categories
Architecture
House Plan
Staff Dormitory Room Design
Uploaded by:
Albert
stroy
View Profile
View Profile
Description
Staff Dormitory Room, official bed room, .30cm Projection, Dining room, Entertainment Centre Detail. With interior design & section & Elevation design.
File Type:
Autocad
File Size:
466 KB
Category::
Architecture
Sub Category::
House Plan
type:
Gold
Uploaded by:
Albert
stroy
View Profile
Download
Add to libary
find Latest
Related
Files