LOGIN
HOME
CATEGORIES
UPLOAD FILE
PRICING
HOUSE PLAN
ABOUT US
CONTACT US
Coffee Shop Plan CAD Drawing Download
Home
Categories
Architecture
Hotels and Restaurants
Coffee Shop Plan CAD Drawing Download
Uploaded by:
Jiya
View Profile
View Profile
Description
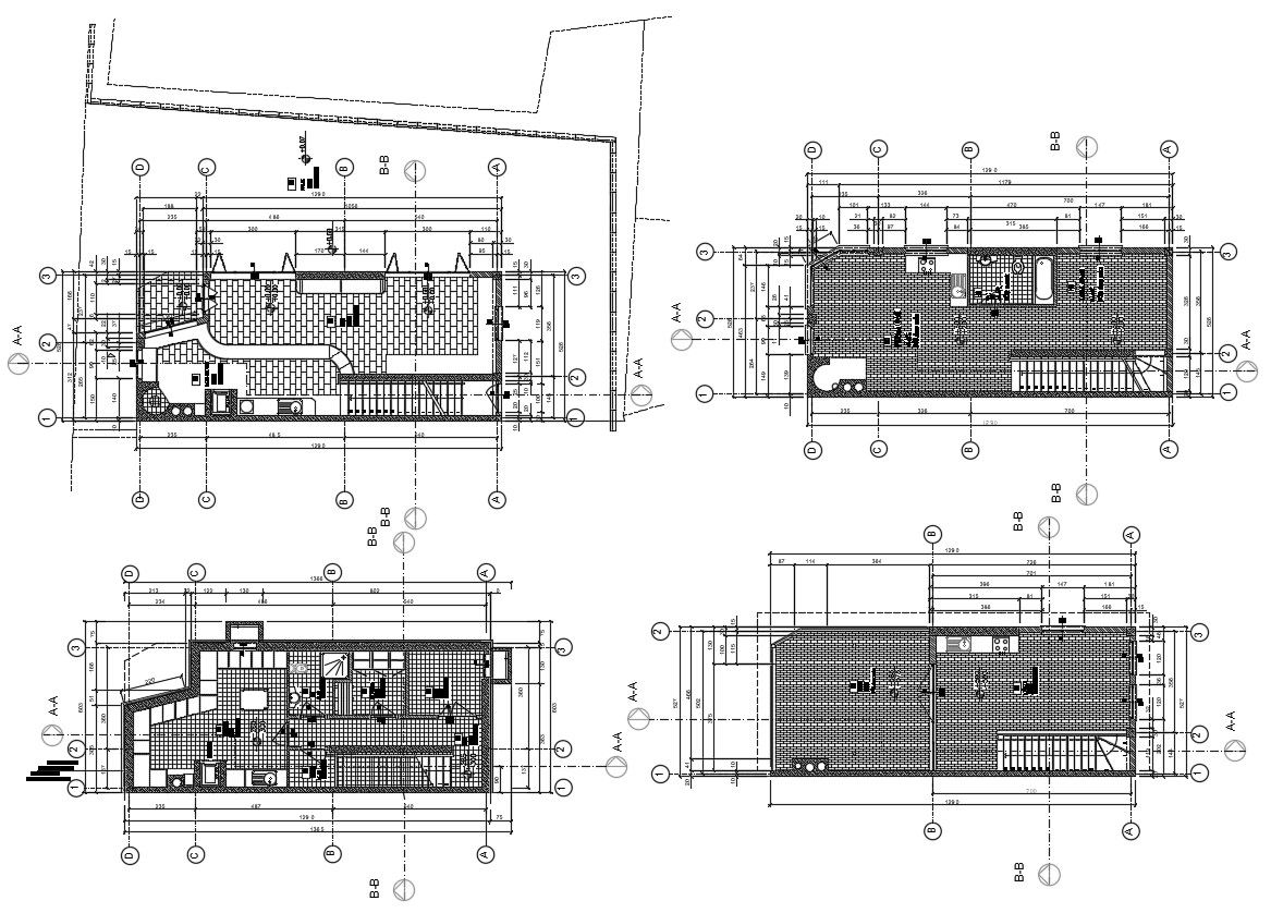
Coffee shop building Layout floor plan that shows kitchen area details along with Furniture blocks details and dimension hidden line details.
File Type:
DWG
File Size:
496 KB
Category::
Architecture
Sub Category::
Hotels and Restaurants
type:
Gold
Uploaded by:
Jiya
View Profile
Download
Add to libary
find Latest
Related
Files