LOGIN
HOME
CATEGORIES
UPLOAD FILE
PRICING
HOUSE PLAN
ABOUT US
CONTACT US
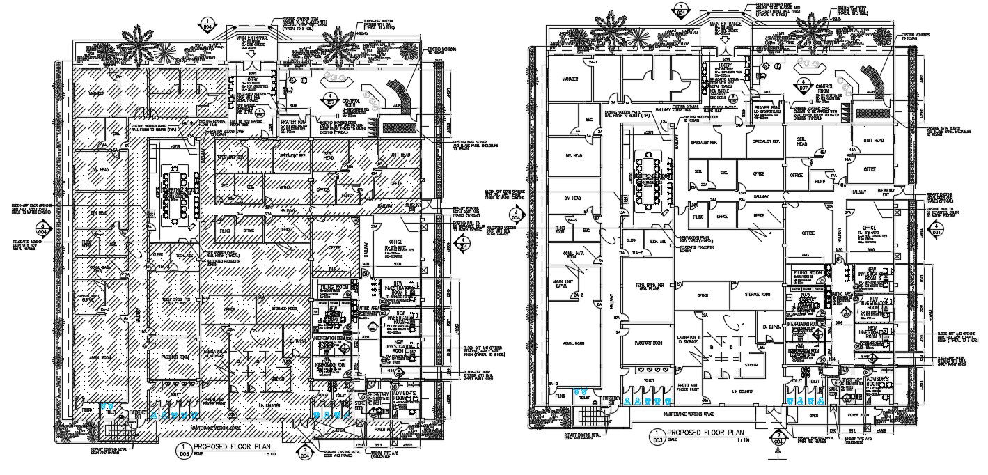
Commercial Building Floor Plan CAD File
Home
Categories
Architecture
Corporate Building
Commercial Building Floor Plan CAD File
Uploaded by:
Jiya
View Profile
View Profile
Description
2d proposed floor plan of commercial building CAD drawing which shows the work plan of building along with section line and dimension hidden line details.
File Type:
DWG
File Size:
1.3 MB
Category::
Architecture
Sub Category::
Corporate Building
type:
Gold
Uploaded by:
Jiya
View Profile
Download
Add to libary
find Latest
Related
Files