6 BHK Residential Mansion House Design Plan
Description
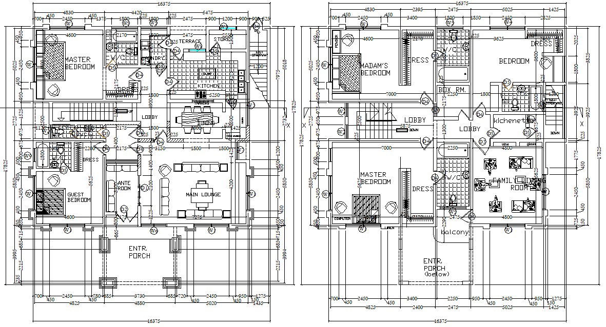
Residential Furnished bungalow design plan that shows house floor level details along with furniture arrangement details, Section line, Dimension working set, staircase, and various other details download CAD drawing for a detailed work plan.
File Type:
DWG
File Size:
811 KB
Category::
Interior Design
Sub Category::
Bungalows Exterior And Interior Design
type:
Gold

Uploaded by:
akansha
ghatge

