Water Tank Construction RCC Structure 2d CAD Drawing
Description
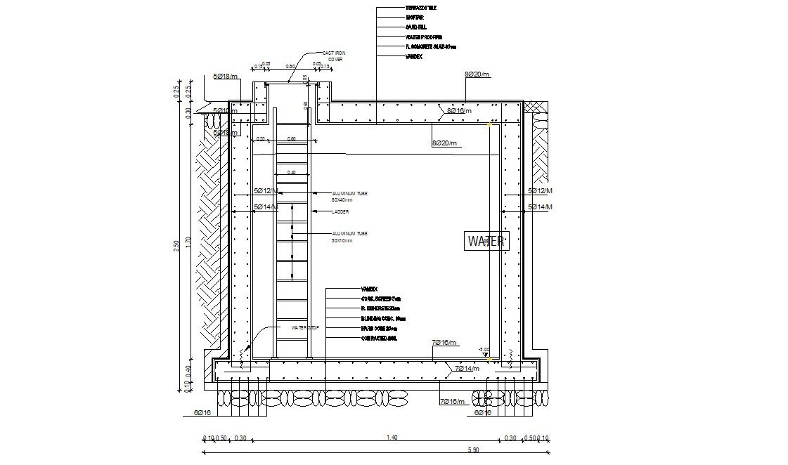
Sectional details of Water tank construction blocks that show water tank depth and capacity details along with reinforcement details in tension and compression zone. Bar dimension details with effective cover details water tank opening cover and various other structural blocks details also included in drawing download AutoCAD file.

Uploaded by:
akansha
ghatge

