Fully Furnished Bungalow With Foundation Design AutoCAD File
Description
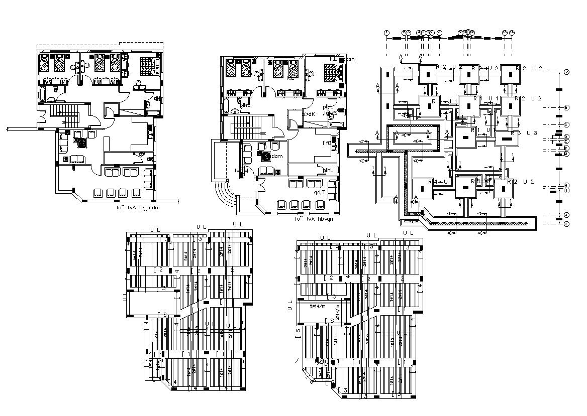
this is the drawing huge bungalow layout design with furniture layout plan, column foundation details, beam and column marking in the slab, centerline plan with dimension, peripheral excavation line in it, in this planning added drawing room, living room, bedrooms, toilet, kitchen, dining and other functions in it.
Uploaded by:
Rashmi
Solanki

