House Plan For 26' X 32' Plot Size AutoCAD File
Description
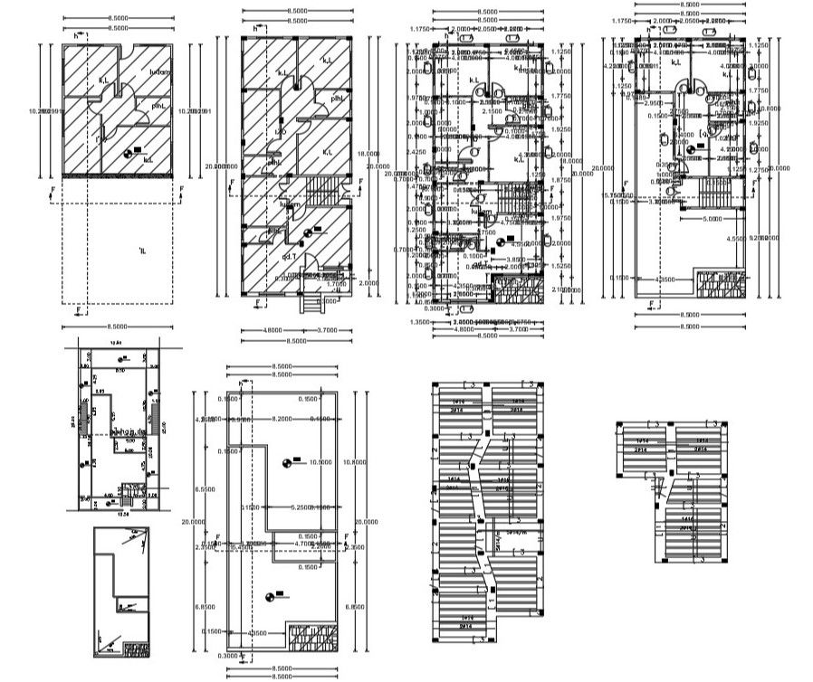
This plan offers 832 square feet of house living space that includes 5 bedrooms on the ground floor and a first-floor plan design with a basement plan. also has a reinforcement slab bar structure design and column layout plan with dimension detail. download DWG file of 26 feet by 32 feet house plan drawing.
Uploaded by:

