LOGIN
HOME
CATEGORIES
UPLOAD FILE
PRICING
HOUSE PLAN
ABOUT US
CONTACT US
Elevation Layout AutoCAD Download File
Home
Categories
Architecture
Bungalow House Design
Elevation Layout AutoCAD Download File
Uploaded by:
Poonam
View Profile
View Profile
Description
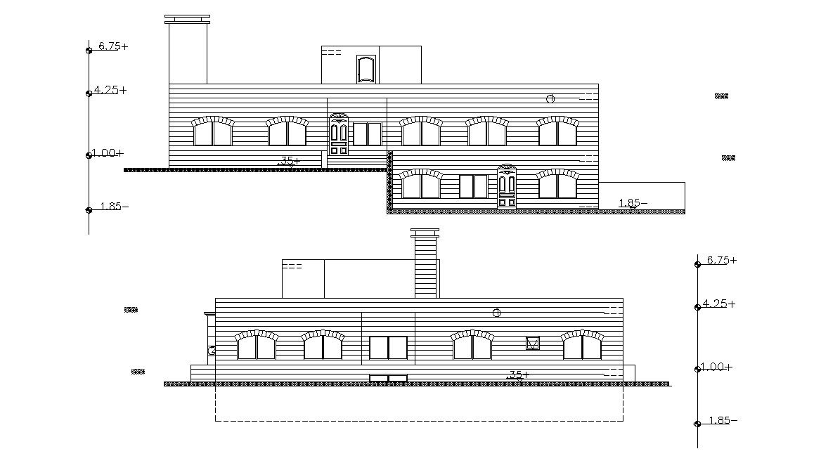
The modern architecture elevation layout provide floor level, plinth level, elevation height is 6.75 meter, windows details and hatching. download CAD file.
File Type:
DWG
File Size:
4.7 MB
Category::
Architecture
Sub Category::
Bungalow House Design
type:
Gold
Uploaded by:
Poonam
View Profile
Download
Add to libary
find Latest
Related
Files