LOGIN
HOME
CATEGORIES
UPLOAD FILE
PRICING
HOUSE PLAN
ABOUT US
CONTACT US
Office Plan Drawing DWG File
Home
Categories
Architecture
Government Building
Office Plan Drawing DWG File
Uploaded by:
Komal
View Profile
View Profile
Description
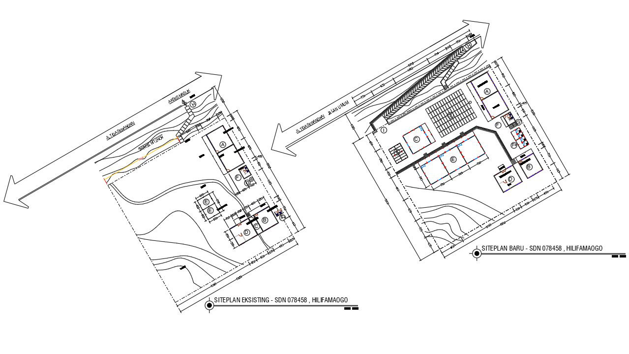
Autocad drawing of government office floor plan CAD drawing includes layout plan with dimension detail, this project located in Baru. download office master plan drawing DWG file.
File Type:
DWG
File Size:
351 KB
Category::
Architecture
Sub Category::
Government Building
type:
Gold
Uploaded by:
Komal
View Profile
Download
Add to libary
find Latest
Related
Files