LOGIN
HOME
CATEGORIES
UPLOAD FILE
PRICING
HOUSE PLAN
ABOUT US
CONTACT US
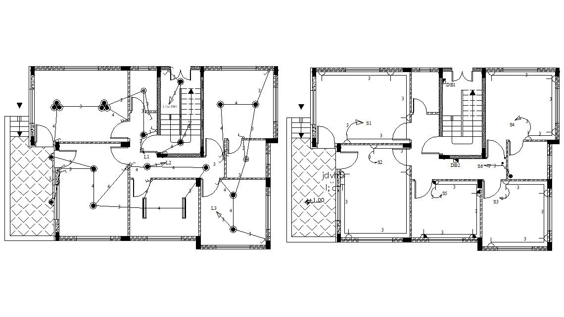
14.45 X 10.65 Meter Bungalow Electrical Layout DWG File
Home
Categories
Electrical
Light Fixtures & Fittings
14.45 X 10.65 Meter Bungalow Electrical Layout DWG File
Uploaded by:
Poonam
View Profile
View Profile
Description
14.45 X 10.65 meter floor electrical layout given details of fan point, switchboards, wiring and lighting details. download CAD file.
File Type:
DWG
File Size:
1.4 MB
Category::
Electrical
Sub Category::
Light Fixtures & Fittings
type:
Gold
Uploaded by:
Poonam
View Profile
Download
Add to libary
find Latest
Related
Files