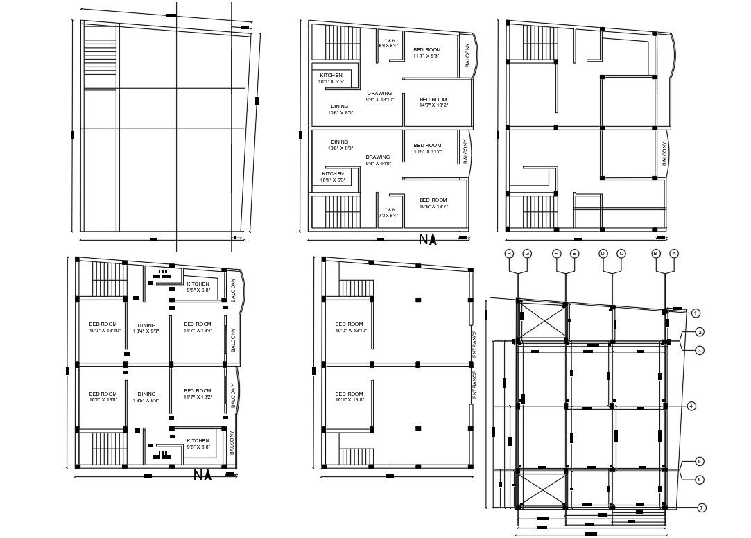
3 BHK Joint House Plan With Column Layout CAD File
Description
3 BHK residence joint house plan drawing that shows 3 bedrooms, kitchen and drawing room with dining area. download residence house plan with column centre line detail DWG file.
Uploaded by:

