Pipe Detail
Description
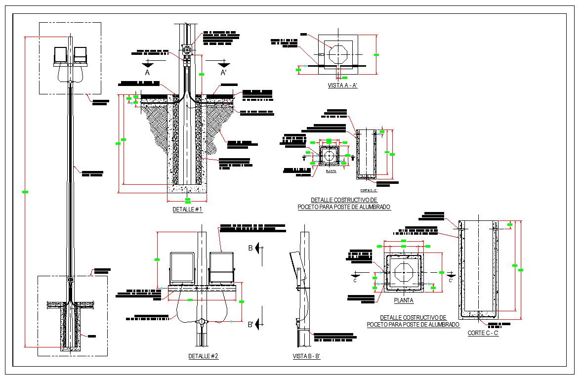
Sand cement coating F'c = 100 kg / cm² with a thickness of 5 cms. Junction box with lid Threaded, for hazardous areas Use weatherproof gub-01 series s-752 With neoprene packagingMca. Crouse hinds domex. Pipe Detail .
File Type:
DWG
File Size:
93 KB
Category::
Dwg Cad Blocks
Sub Category::
Autocad Plumbing Fixture Blocks
type:
Gold

Uploaded by:
Harriet
Burrows

