Toilet Building Section CAD Drawing Download DWG File
Description
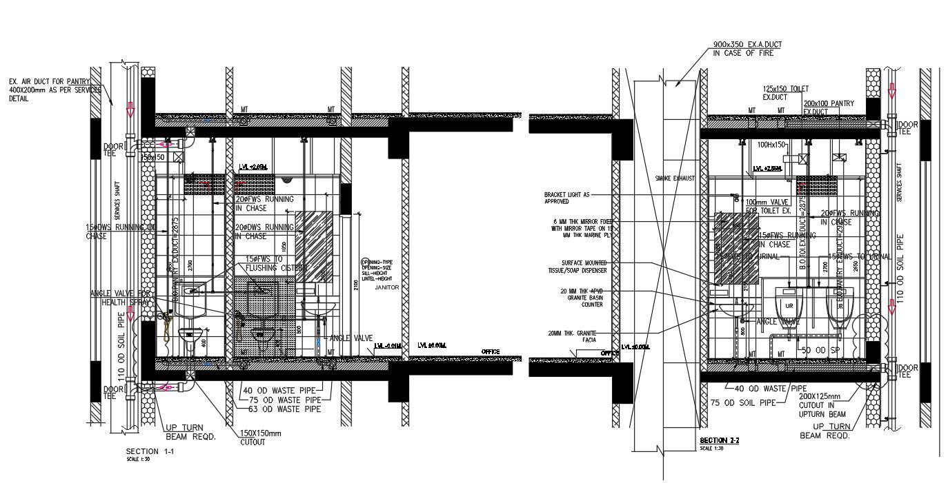
The Public toilet building section drawing that shows RCC slab, flooring with drain pipe, air duct 400X200MM as per services detail, sanitary ware toilet tub and wash basin installation, plumbing pipe line detail, and wall section with all dimension and description detail. download public toilet building section drawing DWG file.
Uploaded by:

