Hospital Nurse Call System Floor Plan Drawing DWG File
Description
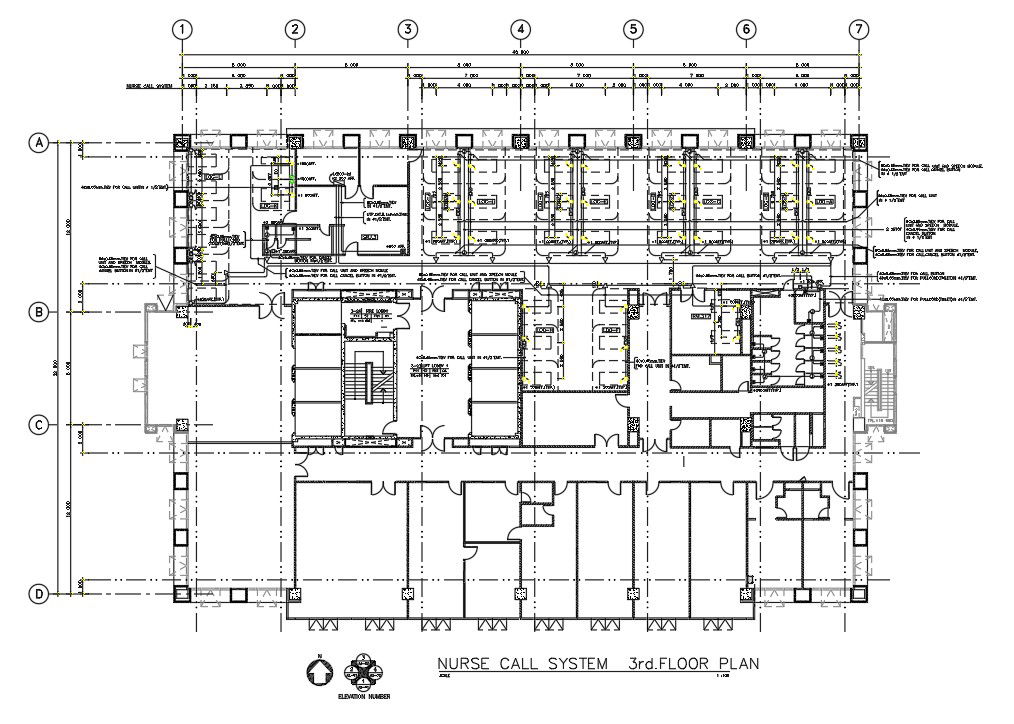
The hospital project CAD drawing shows nurse call floor plan which consist speech module, cancel button and pull cord. also has operation theater, consult room, public toilet, admit special room and general ward. also has all dimension and center line plan design. Thank you for downloading the AutoCAD 2D DWG drawing file and other CAD program files from our cadbull website.
Uploaded by:

