Air Conditional Installation AutoCAD Drawing DWG File
Description
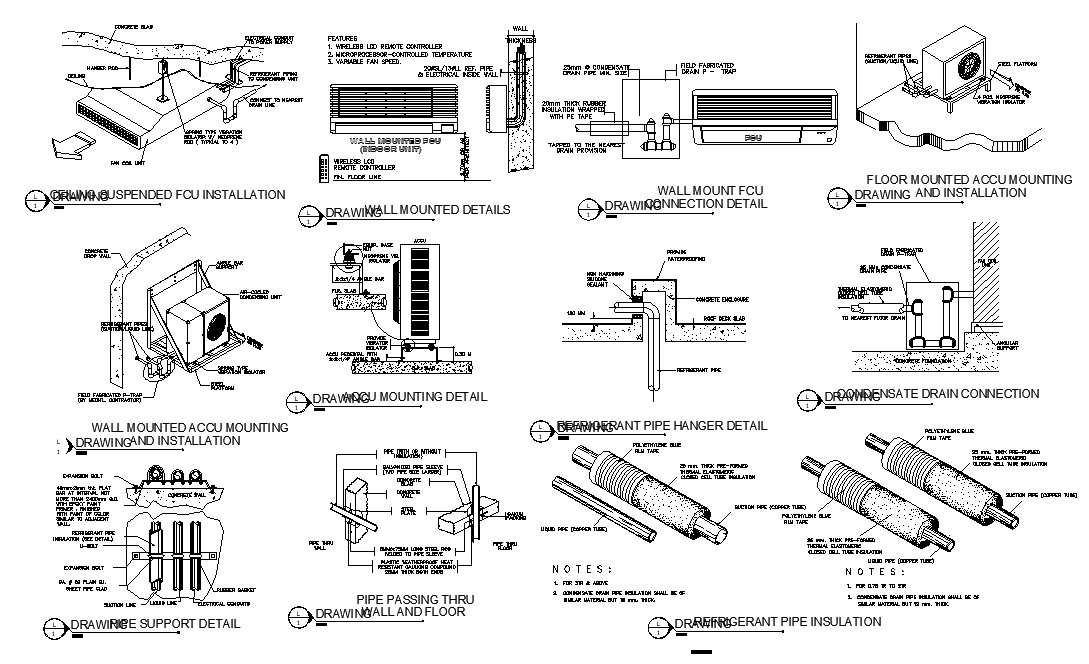
The air conditional installation CAD drawing which consist electrical conduit to power supply, refrigerant piping to condensing unit, connect to nearest drain line, microprocessor-controlled temperature, variable fan speed. also has floor mounted accu mounting and condensate drain pipe insulation shall be of similar material 19 mm. thick.
File Type:
DWG
File Size:
9.5 MB
Category::
Electrical
Sub Category::
Electrical Automation Systems
type:
Gold
Uploaded by:

