Construction building Beam Plan With Column Section Drawing DWG
Description
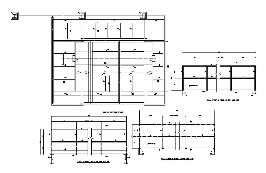
The Construction building beam layout plan and column section AutoCAD Drawing that shows steel welding's are continuous fillet unless otherwise specified in joint section. The strength of such joints are assumed to be satisfied by just anchoring the beam reinforcement in the joints. Thank you for downloading the AutoCAD file and other CAD program from our website.
File Type:
DWG
File Size:
279 KB
Category::
Construction
Sub Category::
Construction Detail Drawings
type:
Gold
Uploaded by:

