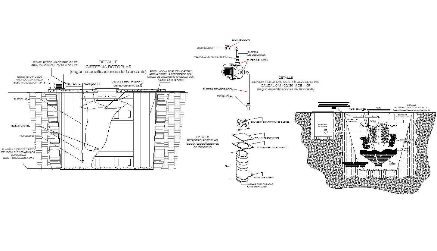
Underground water drainage tanks
Description
Underground water drainage tanks. Repellant based on mortar sand prop 1: 4 reinforced with chicken net anchored with rods 3/8 @ 50cm. detail Biodigestor rotoplas 3000lt (According to manufacturer specifications), mold concrete 5cm f'c 100 armed mesh electro 15 * 15.
File Type:
DWG
File Size:
77 KB
Category::
Structure
Sub Category::
Section Plan CAD Blocks & DWG Drawing Models
type:
Gold
Uploaded by:
Priyanka
Patel
