2D design of foundation details of outer wall in AutoCAD drawing, CAD file, dwg file
Description
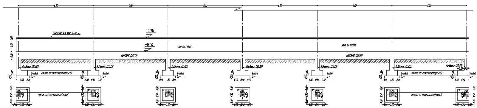
This architectural drawing is the 2D design of the foundation details of the outer wall in AutoCAD drawing, CAD file, and dwg file. The stability of the structure is ensured by its foundations: to evenly distribute the structure's weight across a vast area in order to prevent the underlying soil from becoming overburdened. For more details and information download the drawing file. Thank you for visiting our website cadbull.com.
Uploaded by:
viddhi
chajjed

