column horizontal reinforcement detail with symmetrical column junction detail and intermediate level dwg autocad drawing .
Description
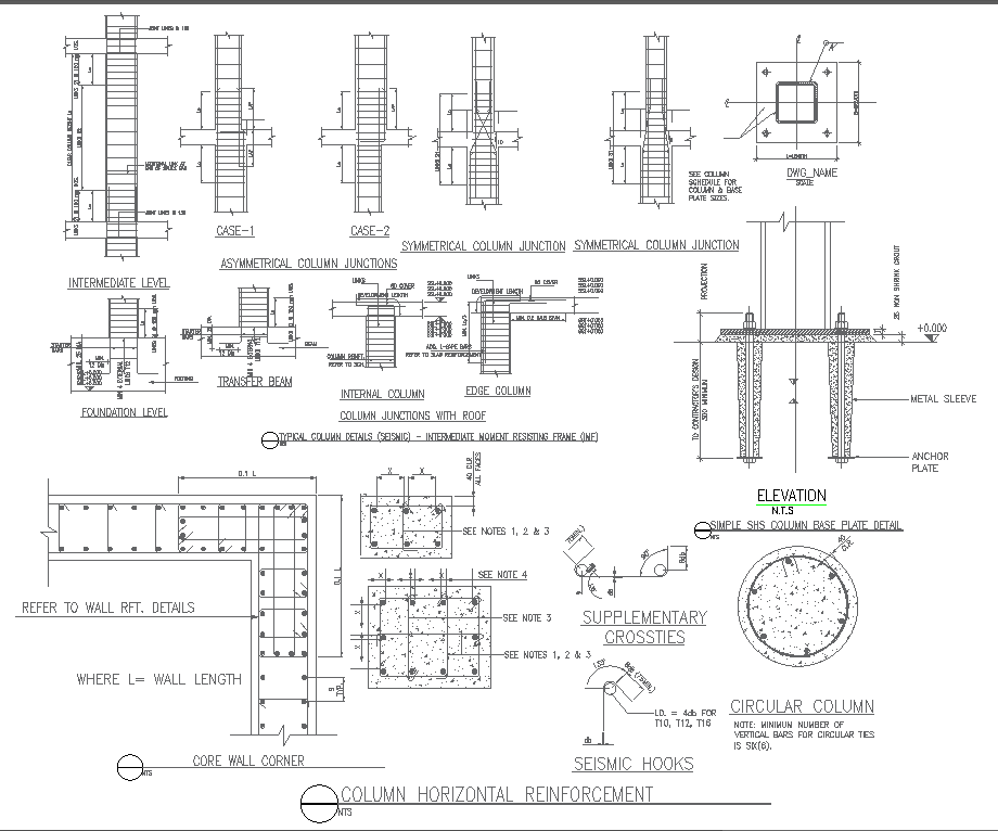
Explore a comprehensive AutoCAD DWG drawing detailing the horizontal reinforcement of columns, along with symmetrical and asymmetrical column junction details, at intermediate levels. This drawing provides valuable insights into the structural integrity of columns, showcasing reinforcement arrangements for both symmetrical and asymmetrical junctions. Additionally, it may include details such as transfer beams and foundation levels, crucial for supporting the load distribution within the structure. With a focus on internal and edge columns, this drawing serves as a vital resource for engineers and architects involved in structural design projects. Accessible as a 2D AutoCAD drawing in DWG format, this file facilitates seamless coordination and implementation of critical design elements for robust and reliable structures.

Uploaded by:
Liam
White

