Fire system installation all detailed sections with sprinkler detail DWG AutoCAD drawing
Description
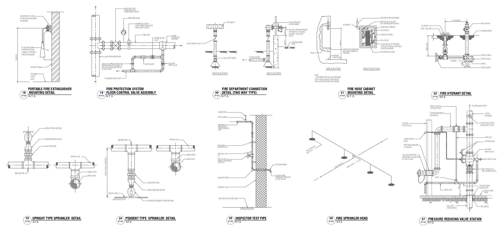
Explore the intricacies of fire safety with our comprehensive DWG AutoCAD drawing, detailing the installation of a fire system, complete with all necessary sections and sprinkler details. Our drawing provides a thorough overview of the fire protection system, including precise placements of sprinklers, pipes, and other components essential for effective fire suppression. With meticulous attention to plot detail, site analysis, and elevation, our drawing ensures seamless integration of the fire system with the overall building design. Whether for a house, villa, apartment, or commercial property, our detailed sections offer invaluable insights into space planning and housing scheme requirements. Trust our drawing to meet the highest standards of safety and functionality, with a focus on electric design, plumbing design, and water supply. Embrace fire safety with confidence using our comprehensive AutoCAD drawing.
Uploaded by:

