Water supply PVC network plumbing layout detail DWG AutoCAD drawing
Description
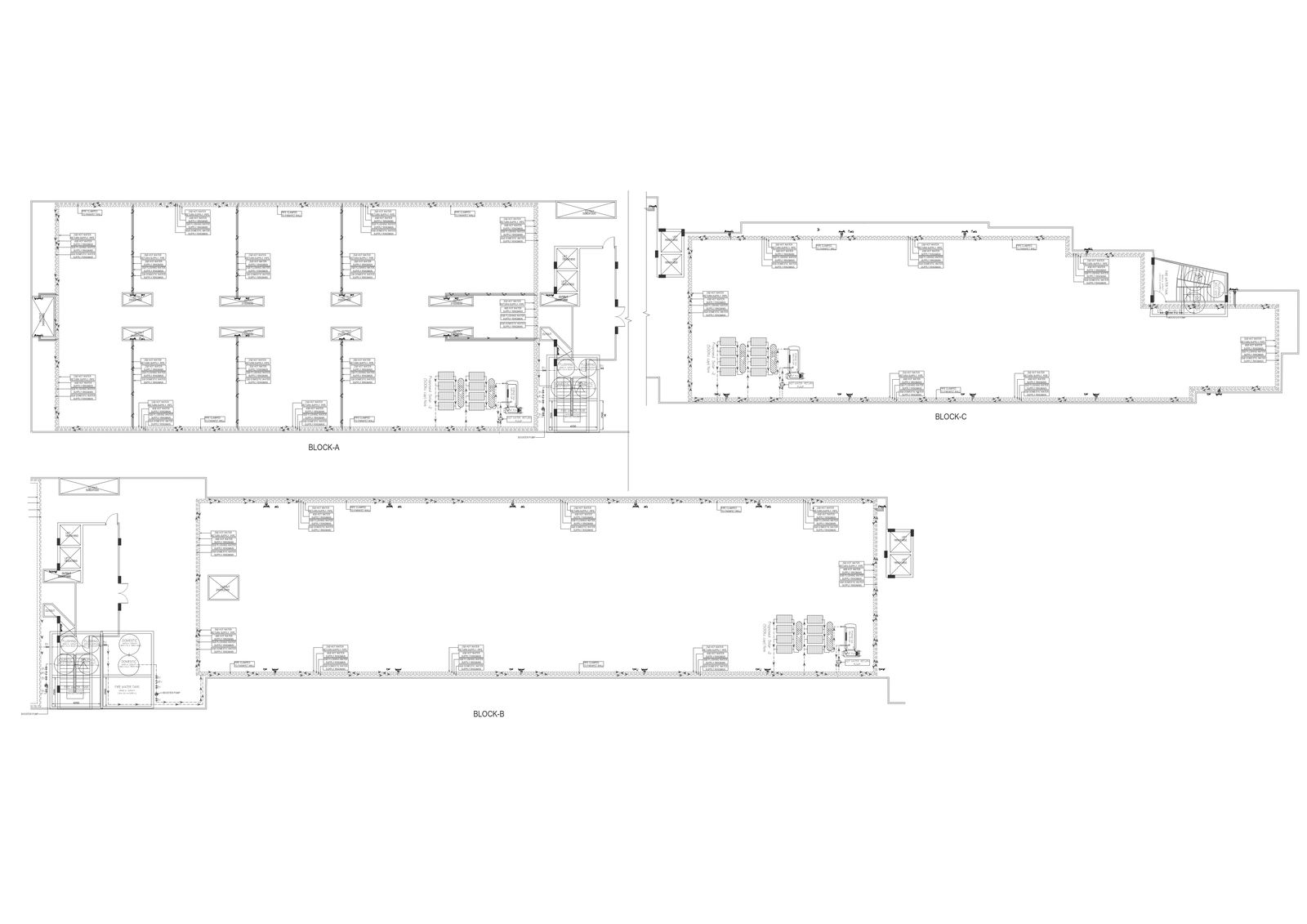
Explore the detailed water supply PVC network plumbing layout in this comprehensive AutoCAD drawing. Delve into plot details, site analysis, and furniture arrangements, all vital for optimizing water distribution efficiency in residential and architectural designs. This drawing showcases meticulous space planning, ensuring that water supply systems are integrated seamlessly within structures. From elevation to section details, every aspect is carefully considered to meet the needs of modern living spaces and urban environments. Ideal for architects, engineers, and designers, this AutoCAD drawing provides valuable insights into designing efficient plumbing networks, highlighting key elements like floor layouts, column details, and section views.
File Type:
DWG
File Size:
675 KB
Category::
Dwg Cad Blocks
Sub Category::
Autocad Plumbing Fixture Blocks
type:
Gold
Uploaded by:

