Three bedroom design with furniture layout on first floor of house DWG AutoCAD drawing
Description
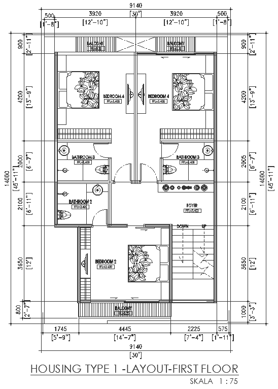
Discover a meticulously detailed three-bedroom design showcased on the first floor of a house, rendered in a DWG AutoCAD drawing. This architectural plan features comprehensive plot details and site analysis, emphasizing furniture arrangement, elevation, and section details. The drawing highlights space planning and floor layout, integrating column and section details to provide a holistic view of the interior. It captures essential elements of house design, including bedrooms, kitchen layout, staircase design, and facade details, embodying thoughtful architecture and urban development concepts. Ideal for architectural visualization and construction planning, this AutoCAD drawing serves as a blueprint for house planning, foundation, and footing details, enabling a practical approach to concrete construction and home design.
Uploaded by:

