Aluminum door details with aluminum frame dwg autocad drawing .
Description
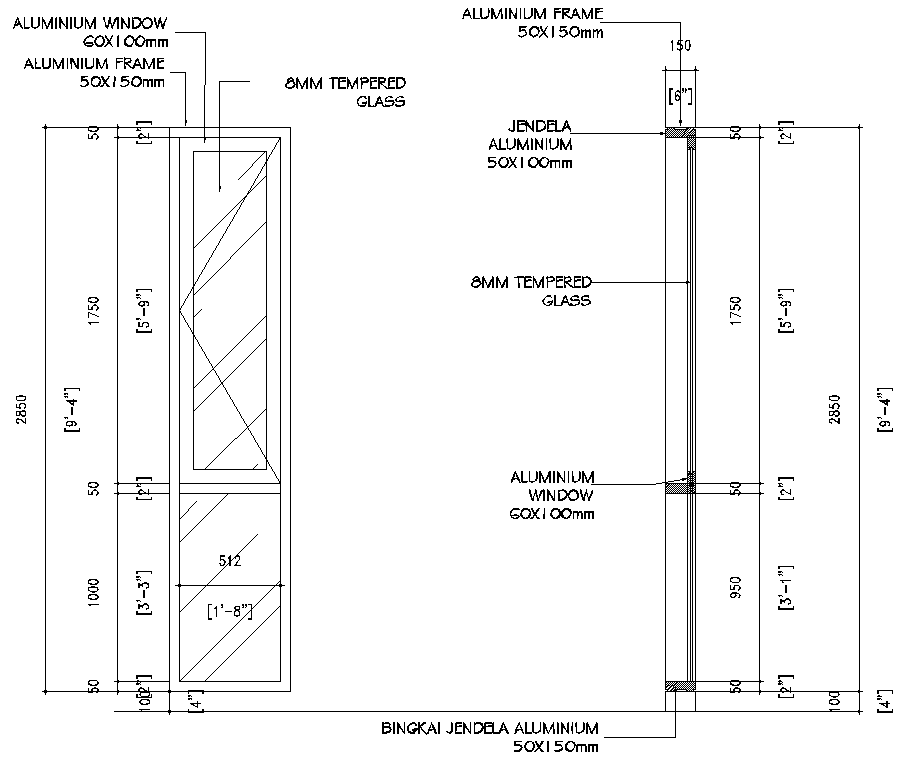
This AutoCAD DWG drawing offers detailed specifications for aluminum doors integrated with aluminum frames, ensuring precise construction and installation. It serves as a valuable resource for architects, engineers, and designers looking to incorporate durable and aesthetically pleasing aluminum door systems into their projects. The drawing provides comprehensive details such as dimensions, materials, and assembly methods, facilitating accurate fabrication and assembly processes. Professionals can utilize this drawing to ensure seamless integration of aluminum doors, optimizing both functionality and visual appeal in residential, commercial, or industrial settings. Downloading this DWG file enables efficient planning and implementation of aluminum door solutions, supporting projects with robust and modern architectural elements. Enhance your design and construction workflow with this essential resource for aluminum door details in AutoCAD, ensuring quality and precision throughout the building process.
File Type:
DWG
File Size:
20.4 MB
Category::
Dwg Cad Blocks
Sub Category::
Windows And Doors Dwg Blocks
type:
Gold

Uploaded by:
Liam
White

