LOGIN
HOME
CATEGORIES
UPLOAD FILE
PRICING
HOUSE PLAN
ABOUT US
CONTACT US
foundation plan detail dwg file
Home
Categories
Details
Architectural Detail Drawings
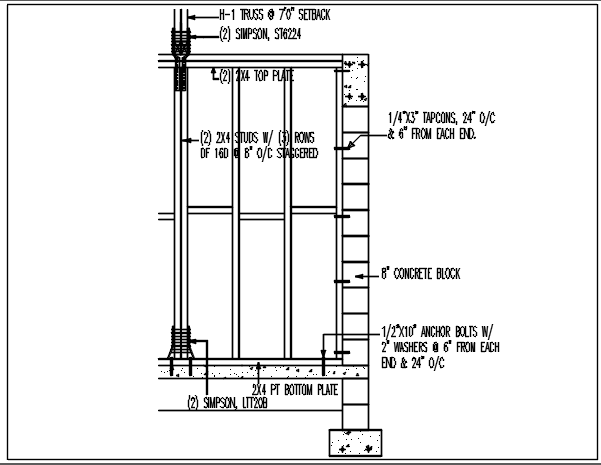
foundation plan detail dwg file
Uploaded by:
Dhara
View Profile
View Profile
Description
foundation plan detail dwg file, foundation plan detail with mortar wall in slab and plinth level, naming detailing plan
File Type:
DWG
File Size:
10 KB
Category::
Details
Sub Category::
Architectural Detail Drawings
type:
Free
Uploaded by:
Dhara
View Profile
Download
Add to libary
find Latest
Related
Files