Primax office building architecture layout plan details dwg file
Description
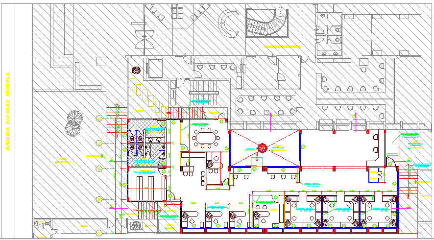
Primax office building architecture layout plan details dwg file.
Primax office building architecture layout plan details that includes a detailed view of main entry door, reception area, waiting area, sitting area, general hall, admin office, control room, employee office, head offices, conference room, meeting room, kitchen, cafeteria, cleaning room, specialized departments, toilets and much more of layout plan details.
Uploaded by:

