Commercial Layout plan detail dwg file

Commercial Layout plan detail dwg file
Profile

Uploaded by:

Dhara

Description
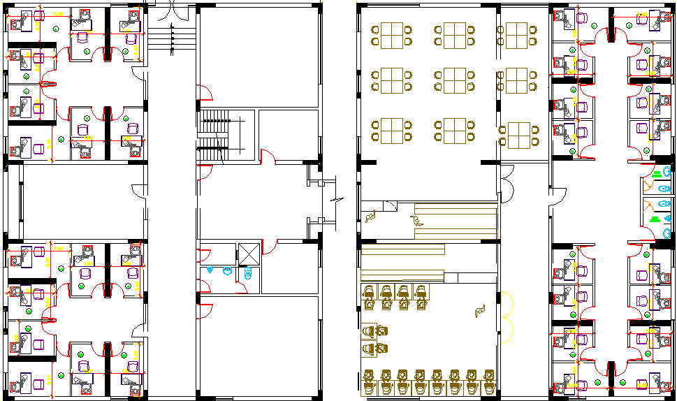
Commercial Layout plan detail dwg file, Commercial Layout plan detail with landspecing detail, plant and tree detail, furniture detail with table and chair detail, stair detail, etc.
Profile

Uploaded by:

Dhara

find Latest

Related Files