Commercial working plan detail dwg file

Commercial working plan detail dwg file
Profile

Uploaded by:

Dhara

Description
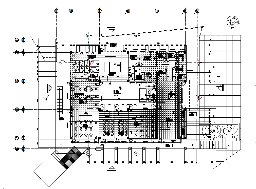
Commercial working plan detail dwg file, Commercial working plan detail with dimension detail, naming detail, center line plan detail with numbering detail, cut out detail, etc.
Profile

Uploaded by:

Dhara

find Latest

Related Files