LOGIN
HOME
CATEGORIES
UPLOAD FILE
PRICING
HOUSE PLAN
ABOUT US
CONTACT US
Working Commercial plan detail dwg file
Home
Categories
Architecture
Corporate Building
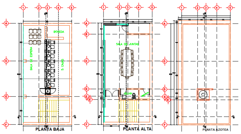
Working Commercial plan detail dwg file
Uploaded by:
Dhara
View Profile
View Profile
Description
Working Commercial plan detail dwg file, including naming detail, dimension detail, stair detail, center line plan detail, roof plan detail, etc.
File Type:
DWG
File Size:
382 KB
Category::
Architecture
Sub Category::
Corporate Building
type:
Gold
Uploaded by:
Dhara
View Profile
Download
Add to libary
find Latest
Related
Files