LOGIN
HOME
CATEGORIES
UPLOAD FILE
PRICING
HOUSE PLAN
ABOUT US
CONTACT US
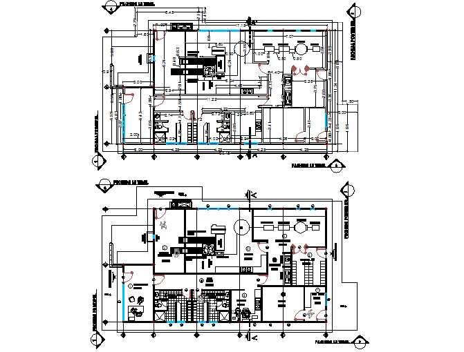
Office plan detail dwg file
Home
Categories
Architecture
Corporate Building
Office plan detail dwg file
Uploaded by:
Dhara
View Profile
View Profile
Description
Office plan detail dwg file, including centre line plan detail, dimension detail, naming detail, furniture detail with door, window, sofa, chair and table detail, etc.
File Type:
DWG
File Size:
895 KB
Category::
Architecture
Sub Category::
Corporate Building
type:
Gold
Uploaded by:
Dhara
View Profile
Download
Add to libary
find Latest
Related
Files