LOGIN
HOME
CATEGORIES
UPLOAD FILE
PRICING
HOUSE PLAN
ABOUT US
CONTACT US
Section plan detail dwg file
Home
Categories
Architecture
High Rise Building
Section plan detail dwg file
Uploaded by:
Dhara
View Profile
View Profile
Description
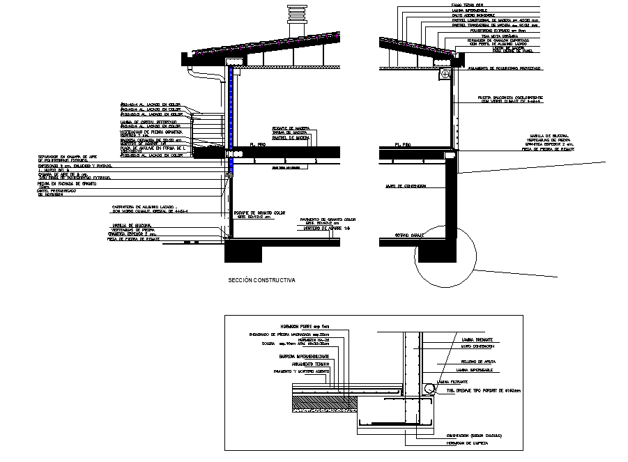
Section plan detail dwg file, with roof detail, naming detail, dimension detail, reinfroceemnt detail, bolt nut detail, etc.
File Type:
DWG
File Size:
3.3 MB
Category::
Architecture
Sub Category::
High Rise Building
type:
Gold
Uploaded by:
Dhara
View Profile
Download
Add to libary
find Latest
Related
Files