Brick building plan autocad file
Description
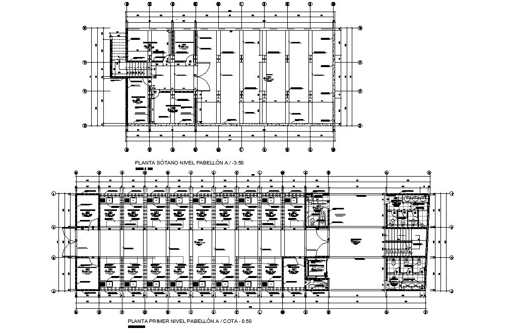
Brick building plan autocad file, first floor to second floor plan detail, dimension detail, naming detail, centre lien detail, toilet plan detail, furniture detail in table, chair, door and window detail, leveling detail, etc.
Uploaded by:

