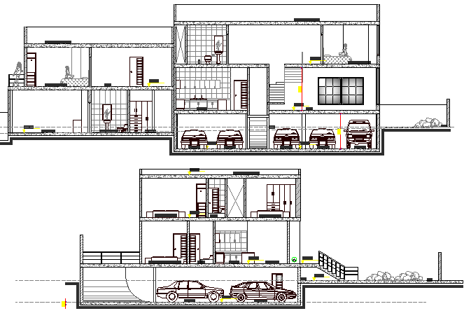
Front and back sectional view of two flooring villa dwg file
Description
Front and back sectional view of two flooring villa dwg file.
Front and back sectional view of two flooring villa that includes a detailed view of basement car parking view, flooring view, doors and windows view, balcony view, staircase view, tree view, toilets, living room, bedroom and much more of villa project.
Uploaded by:

