Architect house plan layout file

Architect house plan layout file
Profile

Uploaded by:

Dhara

Description
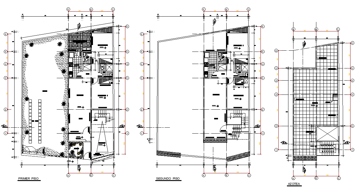
Architect house plan layout file, dimension detail, ground floor to roof plan detail, section lien detail, centre lien detail, stair detail, landscaping detail in tree and plant detail, etc.
Profile

Uploaded by:

Dhara

find Latest

Related Files

WhatsApp Chat