Stair Plan & Elevation Detail
Description
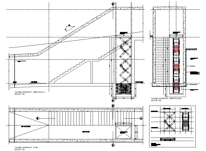
Stair Plan & Elevation Detail. Special types of stairs include escalators and ladders. A stairway, staircase, stairwell, flight of stairs, or simply stairs is a construction designed to bridge a large vertical distance by dividing it into smaller vertical distances, called steps.
File Type:
DWG
File Size:
394 KB
Category::
Mechanical and Machinery
Sub Category::
Elevator Details
type:
Gold
Uploaded by:
zalak
prajapati
