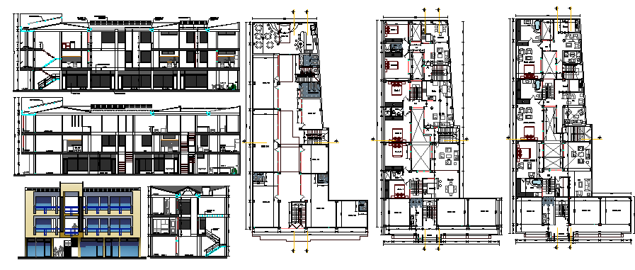
Shopping center elevation, section and floor plan details dwg file
Description
Shopping center elevation, section and floor plan details dwg file.
Shopping center elevation, section and floor plan details that includes a detailed view of main elevation, main section, flooring view, tree view, doors and windows view, staircase view, wall design, section details, layout plan details with shops and showrooms, offices and much more of shopping center project.
Uploaded by:

