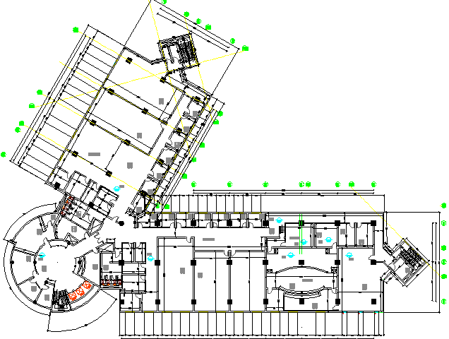
First floor layout plan details of administrative building dwg file
Description
First floor layout plan details of administrative building dwg file.
First floor layout plan details of administrative building that includes a detailed view of main entry and exit gate, waiting area, seating area, corporate offices, employee offices, conference hall, meeting room, dining area, sanitary installation and much more of building floor plan.
Uploaded by:

