Dwg file of hospital
Description
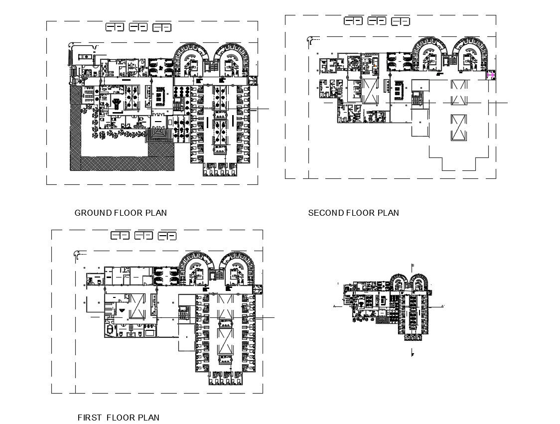
Dwg file of hospital it include ground floor layout, first floor layout, second floor layout, roof layout it include waiting room, reception, cashier area, rooms,pharmacy,consultant room,etc
Uploaded by:
K.H.J
Jani

