LOGIN
HOME
CATEGORIES
UPLOAD FILE
PRICING
HOUSE PLAN
ABOUT US
CONTACT US
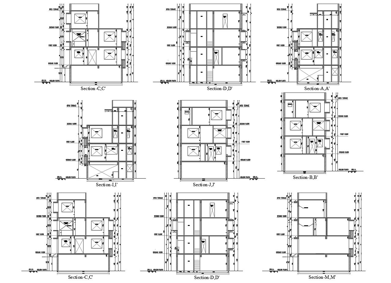
Dwg file of residential apartment section
Home
Categories
Architecture
Apartment Drawing
Dwg file of residential apartment section
Uploaded by:
K.H.J
Jani
View Profile
View Profile
Description
Dwg file of residential apartment section it include sectional elevation,floor level,kitchen,balcony,door,windows,etc
File Type:
DWG
File Size:
2.9 MB
Category::
Architecture
Sub Category::
Apartment Drawing
type:
Gold
Uploaded by:
K.H.J
Jani
View Profile
Download
Add to libary
find Latest
Related
Files