Sectional elevation of villa in dwg file

Sectional elevation of villa in dwg file
Profile

Uploaded by:

K.H.J

Jani

Description
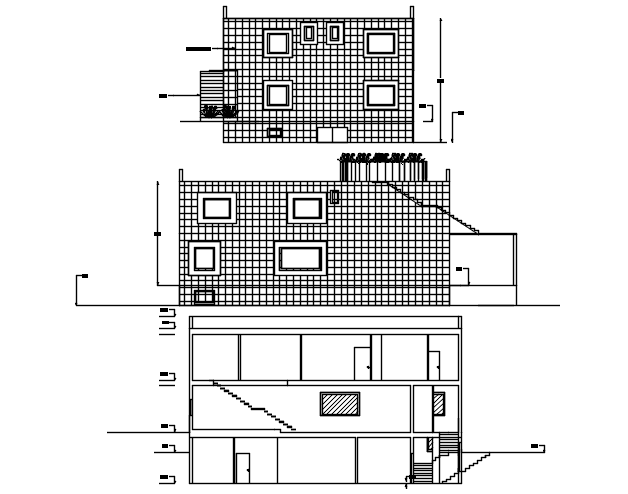
Sectional elevation of villa in dwg file it include front facade,rear elevation,sectional elevation it also include floor level,staircase,doors,windows,etc
Profile

Uploaded by:

K.H.J

Jani

find Latest

Related Files

WhatsApp Chat