LOGIN
HOME
CATEGORIES
UPLOAD FILE
PRICING
HOUSE PLAN
ABOUT US
CONTACT US
Dwg file of institute layout
Home
Categories
Architecture
University
Dwg file of institute layout
Uploaded by:
K.H.J
Jani
View Profile
View Profile
Description
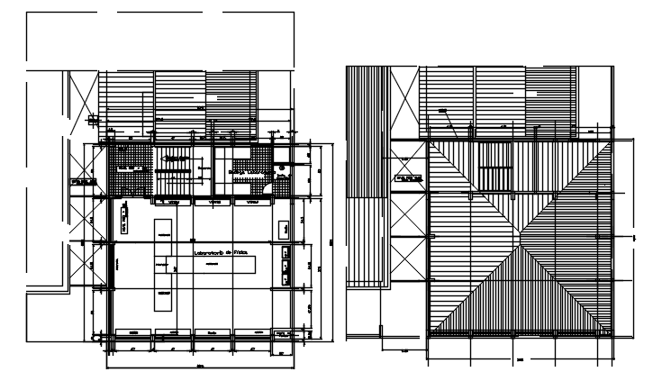
Dwg file of institute layout it includes terrace layout,rooftop layout it also includes physics laboratory,workshop,etc
File Type:
DWG
File Size:
653 KB
Category::
Architecture
Sub Category::
University
type:
Gold
Uploaded by:
K.H.J
Jani
View Profile
Download
Add to libary
find Latest
Related
Files