LOGIN
HOME
CATEGORIES
UPLOAD FILE
PRICING
HOUSE PLAN
ABOUT US
CONTACT US
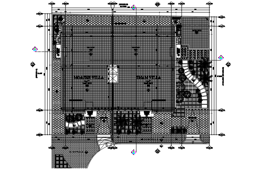
Dwg file of penthouse roof plan
Home
Categories
Architecture
Bungalow House Design
Dwg file of penthouse roof plan
Uploaded by:
K.H.J
Jani
View Profile
View Profile
Description
Dwg file of penthouse roof plan it includes roof plan, rooftop it also includes dining,kitchen,master bedroom,kids bedroom,balcony,bathroom,etc
File Type:
DWG
File Size:
4.9 MB
Category::
Architecture
Sub Category::
Bungalow House Design
type:
Gold
Uploaded by:
K.H.J
Jani
View Profile
Download
Add to libary
find Latest
Related
Files