Modern Bungalow House Floor Plan In DWG File
Description
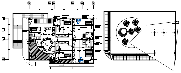
Modern Bungalow House Floor Plan In DWG File which provide detail of the sitting room, hall, master bedroom, bathroom. It also gives detail of roof garden.

Uploaded by:
Eiz
Luna

Uploaded by:
Luna