LOGIN
HOME
CATEGORIES
UPLOAD FILE
PRICING
HOUSE PLAN
ABOUT US
CONTACT US
Office Building Layout Plan In DWG File
Home
Categories
Architecture
Corporate Building
Office Building Layout Plan In DWG File
Uploaded by:
Eiz
Luna
View Profile
View Profile
Description
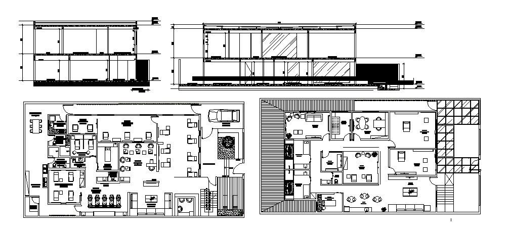
Office Building Layout Plan In DWG File which includes detail of different department, detail of the different section, detail of floor level.
File Type:
DWG
File Size:
5.4 MB
Category::
Architecture
Sub Category::
Corporate Building
type:
Gold
Uploaded by:
Eiz
Luna
View Profile
Download
Add to libary
find Latest
Related
Files