Hotel layout in dwg file

Hotel layout in dwg file
Profile

Uploaded by:

K.H.J

Jani

Description
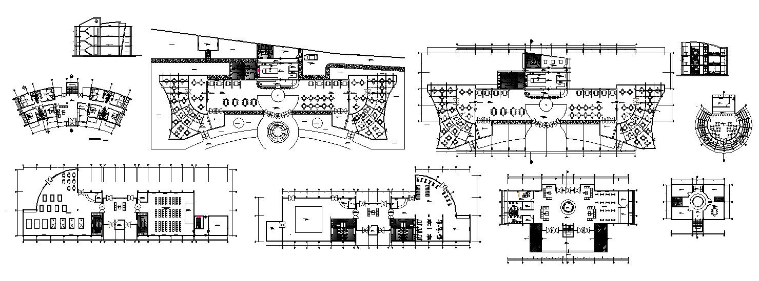
Hotel layout in dwg file it includes ground floor layout, first-floor layout,site plan,sectional elevation it also includes restaurant area,waiting,reception,cafe area,bedroom,etc
Profile

Uploaded by:

K.H.J

Jani

find Latest

Related Files

WhatsApp Chat