LOGIN
HOME
CATEGORIES
UPLOAD FILE
PRICING
HOUSE PLAN
ABOUT US
CONTACT US
Bungalow Drawing Plan In AutoCAD File
Home
Categories
Architecture
Bungalow House Design
Bungalow Drawing Plan In AutoCAD File
Uploaded by:
Eiz
Luna
View Profile
View Profile
Description
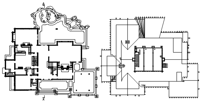
Bungalow Drawing Plan In AutoCAD File which provides detail of drawing room, bedroom, kitchen, dining room, bathroom. It also gives detail of roof plan.
File Type:
DWG
File Size:
263 KB
Category::
Architecture
Sub Category::
Bungalow House Design
type:
Gold
Uploaded by:
Eiz
Luna
View Profile
Download
Add to libary
find Latest
Related
Files